die 2. Kirche

wurde 1756 abgerissen ...
                              die Zweite? abgerissen?

Die alte Kirche wurde den 19. Mai d. J. 1756 unter der Collatur des Herrn von Metzsch abgetragen; Am 31. Mai desselben Jahres der Grundstein zu dem jetzigen, einfachen, aber ebenso zweckmäßig eingerichteten, als sehr hellen und freundlichen Gotteshause gelegt, und so fleißig und eifrig daran gearbeitet, daß schon am 22. August desselben Jahres (1756) die Mauern in die Höhe geführt, das Gesperre (Dachbalken) aufgesetzt, unter das Dach gebracht, und der neue Pastor Wehner seine Probepredigt darin ablegen konnte.

Der Ausbau der Kirche erfolgte wegen der nahrungslosen Zeit, erst im nächsten Jahre darauf; der Anbau des stattlichen Turmes noch zwei Jahre später.

So kann man es in der Chronik nachlesen. Der Abriss der mittelalterlichen Kirche von 1400, der komplette Neubau - in nur drei Monaten! Da staunt man Jahrhunderte später doch recht andächtig: Das waren damals Zeiten, daran sollten wir uns ein Beispiel nehmen!

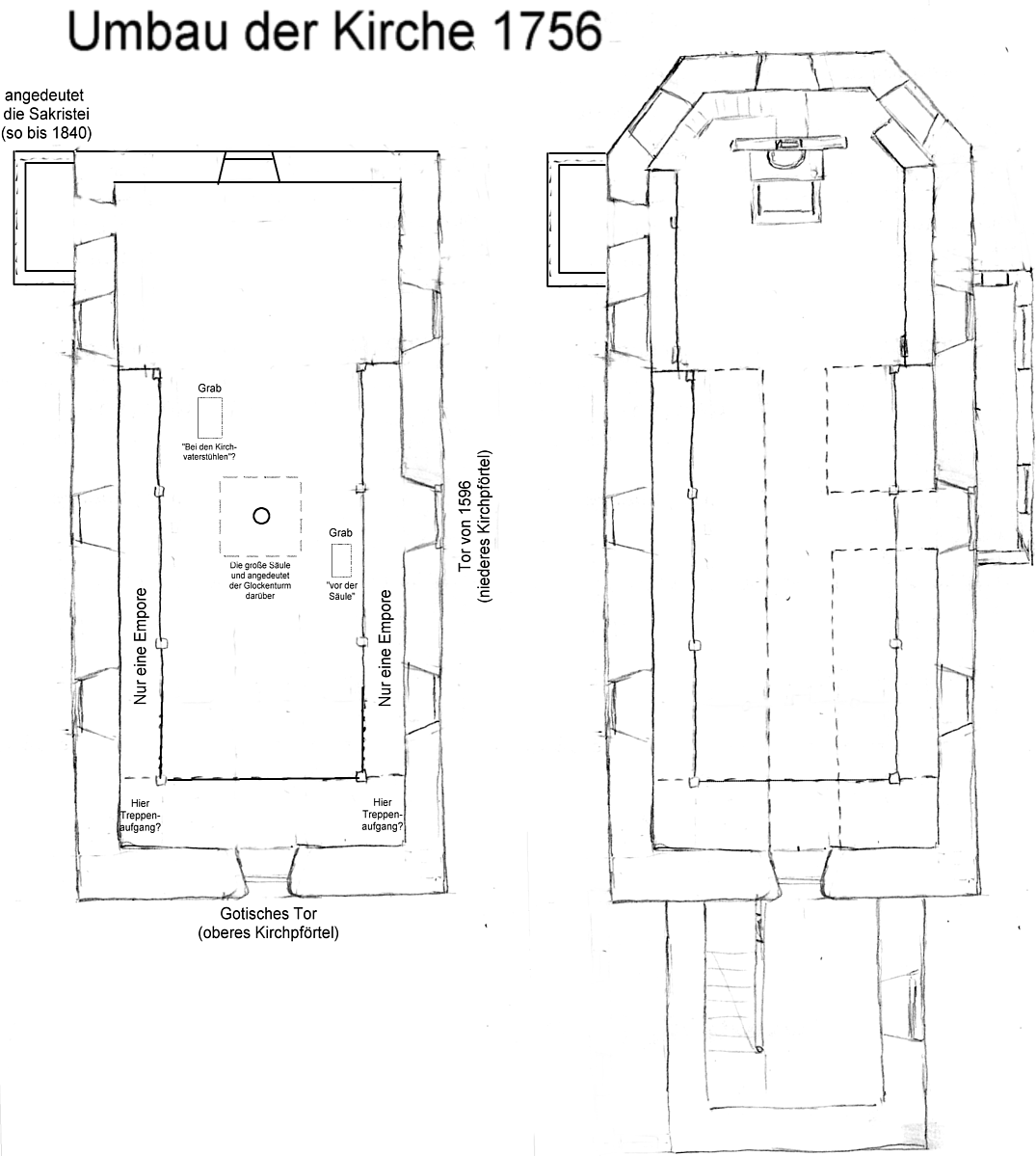
  • Gotisches Portal
    Diese ehrfurchtsvolle Einschätzung lässt sich an verschiedenen Stellen nachlesen; und auch ein wenig Bedauern, dass von der alten Kirche lediglich ein gotisches Portal übrig blieb. Aber -

    Man sollte schon ein ABER wagen, denn diese Interpretation der Chronik passt doch so gar nicht mit unserem Wissen um damalige Technik und um ein armes Erzgebirge zusammen. Lässt sich der obige Text auch anders deuten? - Dazu wäre wohl vor allem zusammen zu tragen, was wirklich vom Vorgängerbau unserer heutigen Kirche bekannt ist und was von diesem übrig blieb. Und dabei wäre das Ziel zu bedenken:Mit möglichst wenig Aufwand möglichst viel neue Kirche zu bauen.

    Kirchrechnung 1605:

    48 Groschen Rückgabe an den Richter, hat er anno 1596 beim Kirchbau zuviel bezahlt.
    Da wäre zunächst die Notiz vom Kirchenbau 1596. Mehr als das ist leider nicht bekannt. Immerhin ist einzusehen, dass einem Gebäude nach 200 Jahren Standzeit mit ein bisschen neuer Farbe nicht zu helfen ist. Irgendwo zwischen Sanierung und Komplettumbau wird man die damalige Aktion einstufen müssen.

    Die Kirchrechnung von 1611 erwähnt die große und mittlere Glocke. 1622 wird der Kirchturm gedeckt, 1625 Öl für die Turmuhr gekauft. Im Sterbebuch findet sich 1726 ein Eintrag über das Begräbnis eines Pfarrers in der Kirche in sein Grab vor der Seulen unter der Glocken. Auch die Chronik weiß von einer großen Säule in der Kirche.

    Es liegt nahe, den Turm der alten Kirche auf deren Dach zu suchen. Als eine Art Dachreiter. Die Lage des Grabes vor der Säule und die Lage der großen Kirchtür an der Südseite könnten (!) bedeuten, dass jene Säule und damit der Turm in der Mitte des Gebäudes aufgesetzt war.

    Wenn damals wirklich die Balken nicht erneuert werden mussten (siehe oben), sollte man auf dem Kirchboden Spuren des alten Turmes finden. - Doch Fehlanzeige, das Dach ist offenbar 1756 komplett neu gebaut worden. Keinerlei Reste künden von Säule und Dachturm.

    Mehr Spuren findet man bei den Emporen. Die verglasten Sitze für die gnädige Herrschaft (Südseite) und jene für die Pfarrersfamilie (Nordseite) entstanden 1756 offenbar neu, denn bei all den Begräbnissen in der alten Kirche werden sie (obwohl naheliegend) nicht erwähnt. Wohl aber danach:

    Doch die Konstruktion der Emporen, in die jene "Betstübchen" eingebaut wurden, ist offenbar älter. Sie endet genau dort, wo jetzt die abgeschrägten Ecken der Kirch-Ostseite beginnen. Aber nicht passend dazu abgeschrägt, sondern rechtwinklig, als wäre dort früher die Kirche mit einer glatten Wand zuende gewesen. Und deutlich ist zu erkennen, dass die zweite Empore später dazugebaut wurde. Lange vor der Zeit, als Balken im Sägewerk hergestellt wurden.

    Man weiß es heute nicht mehr mit Sicherheit; aber der Kirchbau 1756 wäre ein guter Zeitpunkt gewesen für den Bau der Betstübchen, des damals sehr modernen Kanzelaltars mit klassisch-griechischer Gestaltung und die Bemalung und Vergoldung an den Emporen.

    Stöbern wir noch ein wenig in vergilbtem Papier zu Details der alten Kirche: Die Kirchrechnungen berichten von Tür und Fenster der Sakristei (1602), von oberem und niederem Kirchpförtel (1604), vom neuen "Predigtstuhl" (1614), wie damals die Kanzel hieß, von Taufstein, Pult und Kruzifix. Nun wissen wir darum immer noch nicht, wie jene Kirche wirklich aussah. Aber wir könnten ja ein wenig unsere Fantasie spielen lassen, aus den bekannten Fakten zusammenstellen, was möglich gewesen wäre:


    Nun jedoch, lieber Leser, bedenke: VIELLEICHT war das alles so. Vielleicht aber auch anders ...